高架下駐車場

一覧

空車

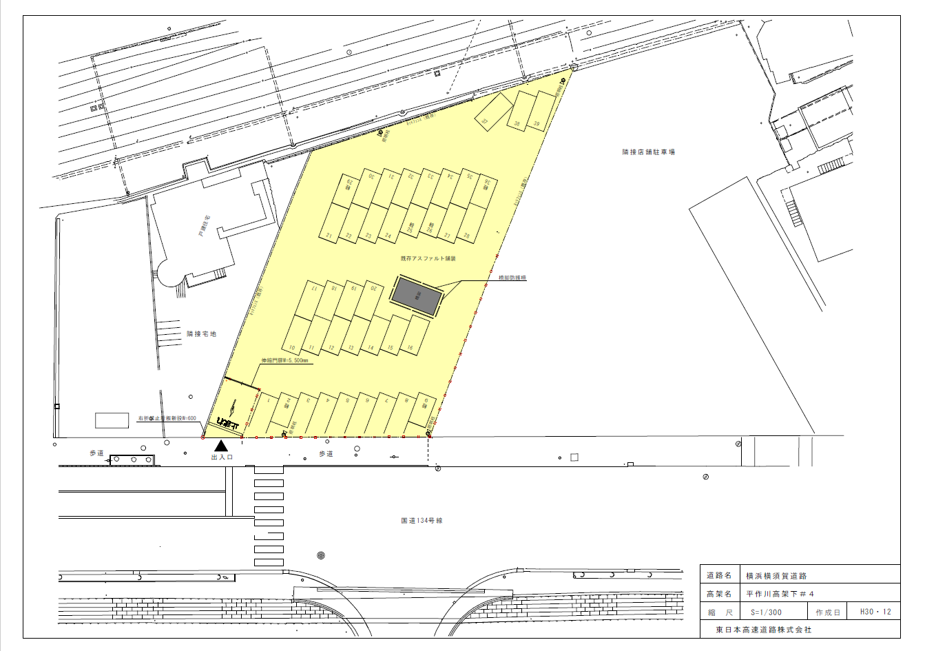
横浜横須賀道路 平作川#4駐車場

月額使用料:12,700円(税込)/台

所在地:
神奈川県横須賀市池田町4-100-11他
収容台数:
39台 【 軽自動車:6台 小型車(普通車):33台 】
車両制限:
軽自動車・小型車(普通車)のみ
敷金:
0円

料金

賃料
12,700 円(税込)/月
敷金
0円
事務手数料
0円

物件詳細

所在地
神奈川県横須賀市池田町4-100-11他
区画サイズ
軽自動車:幅2.5m×奥行4.2m
小型車(普通車):幅2.5m×奥行5.0m
その他
月極駐車場での募集となります。

駐車場平面図はこちら

駐車場に関するお問い合わせ先

いえらぶParking

お問い合わせサイトまたはTEL:050-3529-0526

(受付:24時間)

お問い合わせはこちら

一覧へ戻る